aktuelles Projekt

Architektur

Innenraum

Konzepte

Kontakt

Impressum

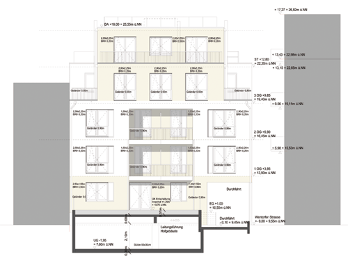
WENTORFER STRASSE | Wohnungen in Bergedorf HH
Auf dem engen Grundstück in Hamburg, Bergedorf wurde ein Vorderhaus und ein Gartenhaus realisiert. Über der Tiefgarage wurde trotz der Enge großzügiger Wohnraum geschaffen. Das Vorderhaus ist eine Lückenbebauung, das Hinterhaus ein alleinstehendes Gartenhaus.
Besonders bei diesem Projekt sind die aufwendigen, auch zum Teil gemeinschaftlichen Terrassen.


Beginn | 05 | 2015
Bauende | 09 | 2016
Bauherr | Team 19 REC Investment & Beteiligungs GmbH
Ort | Wentorferstrasse | 21029 Hamburg
Nutzung | 17 Wohnungen mit Tiefgarage


web www.team19.de