aktuelles Projekt

Architektur

Innenraum

Konzepte

Kontakt

Impressum

STADTHALLE Neumarkt i.d.Oberpfalz | Wettbewerb
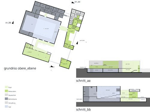
Der gesamte Kubus der stadt_ park_ halle wird durch zwei Fugen, den beiden Foyers, geschnitten, belichtet und zum Außenraum geöffnet. Die Fugen verbinden die Funktionen im Gebäude. Zwei Foyers: Eines auf stadt_ ebene, ein Zweites auf park_ ebene. Die Erschließung lässt sich klar in zwei sich kreuzenden Fugen ablesen, die sich jeweils zur Stadt und zum Park hin öffnen. Das stadt_ foyer und das park_ foyer bilden zusammen ein Scharnier, das Stadt und Park verbindet.

Eine breite, repräsentative Treppenanlage führt ins Hauptgeschoß auf park_ ebene. Hier befindet sich die große Veranstaltungshalle, das umlaufende park_ foyer und der park_ saal (Restaurant). Alle drei Bereiche sind zusammenschaltbar und ermöglichen durch die im Boden versenkbaren Wandelemente größtmögliche Variabilität. So sind Theater, Konzerte und Ausstellungen in zahlreichen Variationen möglich. Durch das park_ foyer und den gläsernen park_ saal wird eine Verzahnung mit der Parklandschaft erreicht.


Wettbewerb | 06 | 2001
Ort | Neustadt i. d. Oberpfalz
Nutzung | Stadthalle, Mulifuktionshalle mit Tiefgarage